Sultan AODA Vestibule.

Office building, 2025

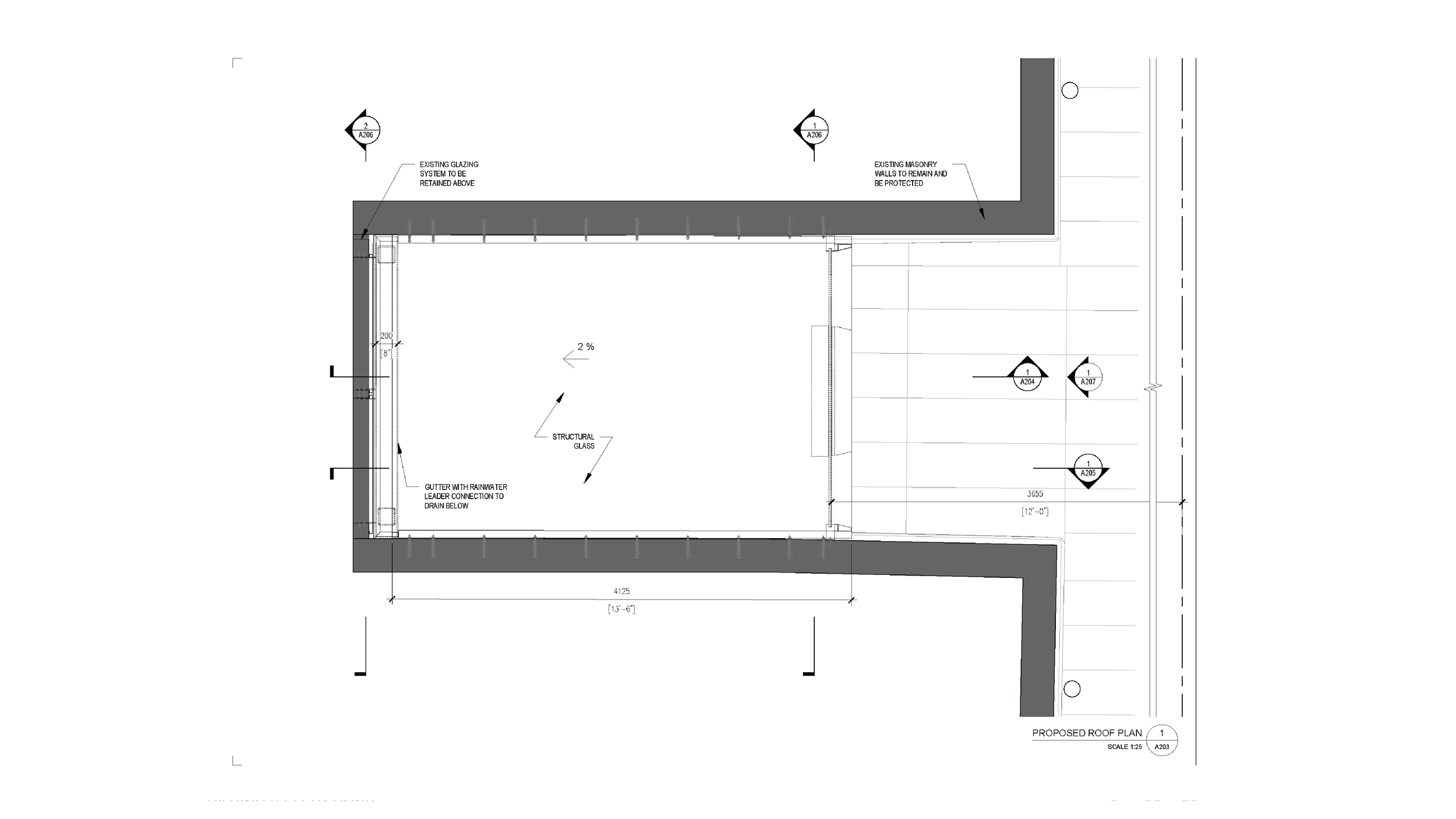
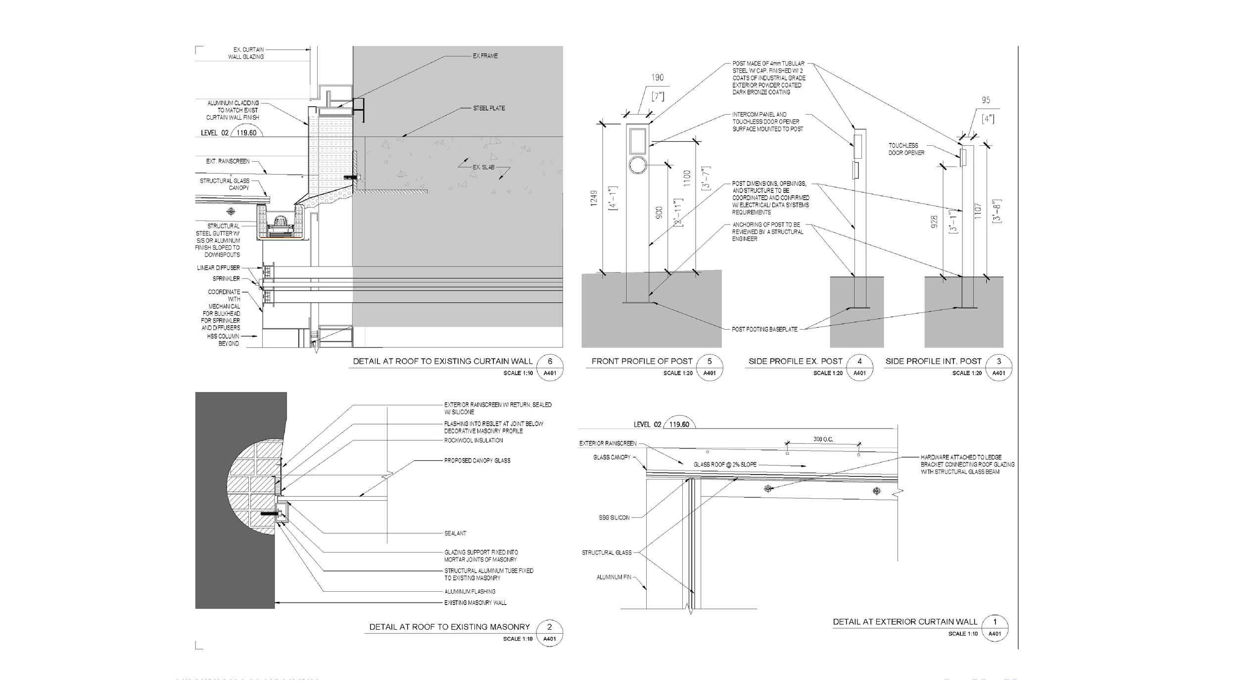
The historical façade featured here required an Accessible, AODA-compliant vestibule for the newly renovated office building. The heritage facade required delicate interventions that could easily be removed with limited damage. I joined this project during the CD phase and worked together with an intern to complete the details and drawing set.

MY WORK:

  • connection details

  • renders

  • sections, elevations and plans

  • assembling the drawing set and creating a report